Сегодня 25 октября 2025
18+
MWC 2018 2018 Computex IFA 2018
реклама
Материнские платы

Обзор материнской платы ECS Z77H2-AX на чипсете Intel Z77 Express

⇣ Содержание

Эксклюзивность видна во всем, начиная с оформления упаковки и дизайна платы и заканчивая ее функциональностью. По утверждению производителя, продолжительность тестирования Z77H2-AX увеличена в три раза относительно стандартной, а температура при тестировании повышена на 125%. Слой позолоты на контактах процессорного разъема и слотов платы также увеличен втрое, что должно положительно сказаться на ее надежности и долговечности при частой смене компонентов. Производитель особо подчеркивает, что платы этой модели собираются вручную и индивидуально пронумеровываются, хотя в чем состоят преимущества этого подхода перед обычной конвейерной сборкой — для нас загадка.

Как и подобает топовому продукту, ECS Z77H2-AX оснащена максимумом дополнительных контроллеров и портов. Так, на плате присутствуют адаптеры Wi-Fi и Bluetooth, слот mSATA для SSD-накопителя, чип Lucid Virtu MVP, позволяющий системе переключаться между дискретной и встроенной в процессор графикой , мост PLX ExpressLane PXE 8747, обеспечивающий дополнительные линии PCI Express, и многое другое. Без сомнения, обладатель этой платы, добавив топовый процессор семейства Intel Ivy Bridge, сможет построить предельно мощную игровую систему.

Спецификация ECS Z77H2-AX
Процессор Разъем Socket LGA1155 (поддержка Ivy Bridge)
Поддержка технологии Intel Turbo Boost
Чипсет Intel Z77 (PCH)
Связь с процессором: DMI 20 Gb/s
Системная память Четыре 240-контактных слота для DDR3 SDRAM DIMM
Максимальный объем памяти 32 Гбайт
Поддерживается память типа DDR3 2400/1066/1333/1600
Возможен двухканальный доступ к памяти
Графика Три слота PCI Express 3.0 x16
Поддержка Intel HD Graphics
Поддержка технологии LucidLogix Virtu MVP
Возможности расширения Два 32-битных слота PCI
Два слота PCI Express x1
Шесть портов USB 2.0 (четыре встроенных, два дополнительных)
Шесть портов USB 3.0 (четыре встроенных, два дополнительных)
Звук High Definition Audio 7.1
Сетевой контроллер Gigabit Ethernet
Возможности для разгона Изменение множителя
Изменение частоты процессорной шины
Изменение напряжения на процессоре, памяти, AXG, IMC, PLL и чипсете (PCH)
Дисковая подсистема Поддержка протокола SerialATA 6 Gb/s (два канала — H77, два канала — ASMedia ASM1061)
Поддержка протокола SerialATA 3 Gb/s (два канала — H77), слот mSATA, два канала eSATA
Extensible Firmware Interface (EFI) AMI BIOS с поддержкой ACPI, DMI, PnP 64 Мбит Flash ROM
ECS M.I.B X Utility
Разное Кнопки Power, Reset, Clear CMOS
Многофункциональная утилита AI Suite II
Встроенные модули Wi-Fi и Bluetooth STR (Suspend to RAM) S/P-DIF Out
Управление питанием Пробуждение от модема, мыши, клавиатуры, сети, таймера и USB
Основной 24-контактный разъем питания ATX
Дополнительный 8-контактный разъем питания
Мониторинг Отслеживание напряжений и скорости вращения всех вентиляторов
Технология QoolTech IV
Размер, мм Форм-фактор ATX, 305х244

Коробка системной платы оформлена относительно скромно: на золотом фоне нет ничего, кроме логотипов и названия платы.

Если откинуть крышку, можно полюбоваться на черную плату с элементами золотого цвета.

В коробке обнаруживается следующее:

  • системная плата;
  • руководство пользователя на английском языке;
  • многоязычное руководство по установке;
  • DVD-диск с ПО и драйверами;
  • шесть кабелей SerialATA;
  • дополнительная планка с двумя разъемами USB 3.0 для передней панели корпуса;
  • экранирующая планка на заднюю панель разъемов;
  • три моста SLI;
  • антенна для Wi-Fi-модуля;
  • набор резиновых заглушек для портов USB.

Комплектация практически исчерпывающая, несколько удручает лишь отсутствие мостов Crossfire. Документация весьма подробная, она включает в себя полное описание настроек BIOS и установки ПО, кроме того, есть инструкция по созданию массива RAID.

Установочная оболочка, запускающаяся с диска, позволяет полностью автоматически установить все необходимые драйверы и утилиты; впрочем, в руководстве описана и процедура ручной установки, на случай если с оболочкой возникли какие-то проблемы.

Cписок размещенных на диске утилит обширный, он содержит как фирменные утилиты, так и набор ПО Cyberlink и Norton Internet Security 2012.

Набор фирменных утилит состоит из пяти программ:

  • eBLU — обновление BIOS «на лету»,
  • eDLU — обновление драйверов системной платы,
  • eOC — простая утилита для разгона системы,
  • eSF — управление режимами работы вентиляторов,
  • EZ Charger — управление зарядкой USB-устройств.

#Плата ECS Z77H2-AX

Внешне плата разительно отличается от всех прочих прежде всего тем, что слоты и разъемы не выделены цветом для удобства пользователя — они черные, как и сама плата. Сделано это, видимо, для того, чтобы ничто не нарушало гармоничную черно-золотую гамму, в которой оформлен продукт: визуально выделяются лишь радиаторы и разъемы задней панели. Это не слишком удобно, зато красиво.

Система охлаждения платы состоит из четырех радиаторов: два охлаждают элементы 12-фазного регулятора напряжения, два — чипсет и чип PLX ExpressLane PXE 8747, попарно они соединены тепловыми трубками.

Практически сразу после распаковки мы обнаружили весьма неприятный дефект: один из углов платы заметно изогнут.

По всей видимости, одно или несколько отверстий для крепления радиаторов регулятора напряжения выполнены немного не там, где следует, из-за чего радиатор стягивает плату и создает в ней напряжения, крайне нежелательные для многослойных плат. Это вполне может привести к появлению микротрещин во внутренних слоях и, как следствие, к нестабильности работы системы. В нашем случае это вызвало некоторые проблемы, не повлиявшие на прохождение тестов. Конечно, отмеченный изгиб — проблема не продукта как такового, а брак в конкретном экземпляре, тем не менее это позволяет обоснованно усомниться в преимуществах ручной сборки.

24-контактный разъем основного питания расположен традиционно — на передней кромке платы, а 8-контактный разъем дополнительного питания спрятан за массивным радиатором регулятора напряжения.

Благодаря чипу PLX ExpressLane PXE 8747, плата способна поддерживать работу трех видеоадаптеров в конфигурации PCI Express x16/x8/x8, чего более чем достаточно для достижения предельной производительности.

На передней кромке платы размещены шесть портов SerialATA: два 3 Gb/s и четыре 6 Gb/s. Все порты ориентированы параллельно плоскости платы, при этом порты 3 Gb/s не отделены цветом от 6 Gb/s, различить их можно лишь по надписям на плате.

Справа от блока портов SeralATA размещены кнопки Power и Reset. Кнопки большие и удобные, правда, изрядно болтаются в своих гнездах. Впрочем, вряд ли этот люфт чреват какими-либо неприятностями, так как эти кнопки обычный пользователь нажимает всего один-два раза для проверки платы перед установкой в корпус. Слева от блока портов SerialATA находится индикатор POST-кодов, который может очень пригодиться для диагностики в случае неработоспособности системы. Жаль только, что в руководстве пользователя значения этих кодов не приводятся.

На плате установлено несколько дополнительных контроллеров. Работу двух дополнительных портов USB 3.0 поддерживает чип Texas Instruments TUSB7320.

На плате установлен неплохой 8-канальный HD-аудиокодек ALC892.

В качестве сетевого адаптера применен гигабитный Realtek RTL8111E.

Работа двух портов eSATA 6 Gb/s, расположенных на задней панели разъемов, обеспечивается чипом ASMedia ASM1061.

Помимо разъемов, задняя панель содержит модули Bluetooth и Wi-Fi, подключенные к шине USB, и кнопку очистки CMOS. Такое размещение кнопки не случайно: действительно, если система не запустится после установки в корпус либо неудачной попытки разгона, сбросить настройки можно, не открывая компьютер.

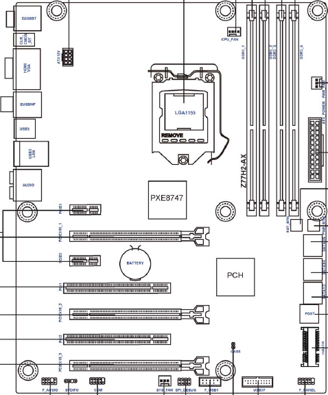
В руководстве приводится не слишком подробная схема компонентов платы:

#BIOS Setup

ECS Z77H2-AX использует вполне современный графический BIOS производства AMI, выполненный на основе UEFI и поддерживающий управление мышью. Первый экран содержит четыре огромные кнопки, позволяющие сменить язык интерфейса BIOS Setup, загрузить настройки по умолчанию, продолжить загрузку системы или же перейти к расширенным настройкам.

Выбор языков достаточно обширный. Что приятно, есть и русский.

Раздел «Главные» позволяет снова изменить язык интерфейса, а также установить системные дату и время.

Практически все основные настройки сосредоточены в разделе «Расширенный». Перевод названий разделов выполнен не лучшим образом. Так, под загадочным заглавием «Настройка управления потребляемой мощностью» кроется всего-навсего старое доброе управление питанием.

Раздел «Состояние ПК» несколько удивляет: температура процессора там не показана. Ее можно определить лишь косвенно, так как там приведено смещение относительно максимальной температуры (которая у каждого процессора своя и в BIOS нигде не показывается). Также в разделе даны напряжения и обороты вентиляторов. Температура чипсета нигде не фигурирует.

BIOS Setup содержит и несколько возможностей, выглядящих немного избыточными. К примеру, вряд ли кому может пригодиться список загрузочных устройств из восьми пунктов. Четырех профилей настройки тоже более чем достаточно.

#Разгон и стабильность

Ярлычок M.I.B X ведет к богатым разгонным возможностям платы. Регулировке поддаются всевозможные напряжения, множитель CPU и предельные множители ядер, частота процессорной шины, частота и различные параметры памяти. Плата позволяет варьировать все напряжения, но только в сторону повышения, чего, впрочем, достаточно.

ПлатаECS Z77H2-AX
Изменение множителя CPU от 16 до 59
Изменение Bclk От 99 МГц до 150 МГц (1 МГц)
Разгон GPU +
Повышение Vcore от +0,010 В до +0,630 В (0,005 В)
Повышение Vmem от +0,010 В до +0,630 В (0,005 В)
Повышение Vimc от +0,015 В до +0,945 В (0,005 В)
Повышение Vсsa от +0,010 В до +0,630 В (0,005 В)
Повышение Vpch от +0,010 В до +0,630 В (0,005 В)
Повышение Vpll от +0,010 В до +0,630 В (0,005 В)

При разгоне процессора с помощью повышения множителя мы достигли стабильной частоты 4,4 ГГц.

Штатная утилита eOC оказалась практически непригодной для разгона, так как множитель она менять не позволяет — только Bclk.

#Производительность

Штатный режим процессора:

В тестовой системе было использовано следующее оборудование:

Тестовое оборудование
Процессор Процессор Intel Core i5-2500K (LGA1155; 3,3 ГГц; Sandy Bridge)
Кулер Боксовый
Видеокарта Sapphire Vapor-X Radeon HD5770
Версия драйвера: 12.4 WHQL
Звуковая карта -
HDD WDC WD2500AAAX 250 Гбайт
Память Corsair DDR3 XMS3 2х2 Гбайт
Блок питания FSP BlueStorm 400 Вт
OS Microsoft Windows 7 64 bit «Домашняя расширенная», SP1
Результаты синтетических тестов
Everest Memory v5.02.1750, Мбайт/с 16774 25238 18681
Everest Memory Lateny v5.02.1750, нс 33,3
ScienceMark 2.0 Default 3973,91 3677,87 1692,62 2173,75 2617,88 2459,42
CineBench R10 10192 20503 5954
SuperPI, v1.1, с 118
Fritz Chess Benchmark, v4.2.0.0, Knps 10190
WinRAR, v3.8, Кбайт/с 3713 1173
Тесты игровых программ
Far Cry 2, v0.1.0.1, Ranch Small, 1024x768, Default, FPS 115,73
X3 Bench, v1.2.0.0, Medium, FPS 129,9
S.T.A.L.K.E.R.: Зов Припяти, v1.5.8.1, 1024x768, Medium / Rain, FPS 161
Resident Evil 5, v1.0.0.129, 1024x768, DX10, FPS 155,7
Crysis Warhead, 1024x768, Mainstream / frost, FPS 105,25
World in Conflict, v1.0, 1024x768, Medium, FPS 139

#Выводы

Отмеченный дефект нашего экземпляра платы привел к проблемам при настройке тестовой системы. Так, процесс входа в BIOS Setup занимал порядка двух минут, а значения опций плата периодически забывала. Тем не менее после загрузки Windows все работало весьма стабильно, а плата продемонстрировала отличные результаты.

ECS Z77H2-AX выгодно отличается от многих продуктов на чипсете Intel Z77 Express наличием практически исчерпывающего набора разгонных функций, несколько удручает лишь непривычное косвенное отображение температуры процессора.

С одной стороны, плата в целом производит впечатление несколько сыроватого продукта: несмотря на пафосный дизайн и роскошную коробку, BIOS выглядит недоработанным, поставляемая с платой утилита для разгона неспособна нормально поднять частоту процессора, а в руководство пользователя не слишком информативно. С другой — нельзя не отметить высокую производительность и стабильность работы системы. И это главное, прочие недочеты легко устранимы.

 
 
⇣ Содержание
Если Вы заметили ошибку — выделите ее мышью и нажмите CTRL+ENTER.

window-new
Soft
Hard
Тренды 🔥
«Жидкое стекло» Apple можно будет заматировать: представлена нова бета iOS 26.1 12 мин.
Сервисы AWS упали второй раз за день — тысячи сайтов по всему миру снова недоступны 8 ч.
Fujitsu влила £280 млн в британское подразделение в преддверии выплат компенсаций жертвам багов в её ПО Horizon 8 ч.
Календарь релизов 20 – 26 октября: Ninja Gaiden 4, Painkiller, Dispatch и VTM – Bloodlines 2 8 ч.
В Windows сломалась аутентификация по смарт-картам после октябрьских обновлений — у Microsoft есть временное решение 9 ч.
Вместо Majesty 3: российские разработчики выпустили в Steam амбициозную фэнтезийную стратегию Lessaria: Fantasy Kingdom Sim 9 ч.
Слухи: Лана Дель Рей исполнит заглавную песню для «Джеймса Бонда», но не в кино, а в игре от создателей Hitman 10 ч.
Зов сердца: разработчики Dead Cells объяснили, почему вместо Dead Cells 2 выпустили Windblown 11 ч.
Adobe запустила фабрику ИИ-моделей, заточенных под конкретный бизнес 11 ч.
Китай обвинил США в кибератаках на Национальный центр службы времени — это угроза сетям связи, финансовым системам и не только 12 ч.
Президент США подписал соглашение с Австралией на поставку критически важных минералов на сумму $8,5 млрд 18 мин.
Новая статья: Обзор смартфона realme 15 Pro: светит, но не греется 5 ч.
Ещё одна альтернатива платформам NVIDIA — IBM объединила усилия с Groq 5 ч.
Учёные создали кибер-глаз, частично возвращающий зрение слепым людям 6 ч.
Samsung выпустила недорогой 27-дюймовый геймерский монитор Odyssey OLED G50SF c QD-OLED, 1440p и 180 Гц 6 ч.
Акции Apple обновили исторический максимум на новостях об отличных продажах iPhone 17 8 ч.
Представлен флагман iQOO 15 с чипом Snapdragon 8 Elite Gen 5 и батареей на 7000 мА·ч по цене меньше $600 9 ч.
Нечто из космоса врезалось в лобовое стекло самолёта Boeing 737 MAX компании United Airlines 10 ч.
Умные кольца Oura научатся выявлять признаки гипертонии, как последние Apple Watch 11 ч.
Дешёвая корейская термопаста оказалась вредна для процессоров и здоровья пользователей 11 ч.